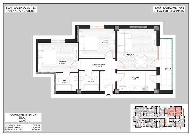
Apartament 3 camere - Imobil P+4 - Calea Ialomiței nr. 47 - S.utilă 79.51mp - Et Parter, 1, 2, 3 -

Apartament 3 camere - Imobil P+4 - Calea Ialomiței nr. 47

Disponibil la parter și etajele
Parter
1
2
3
S. utilă: 79.51mp + 4.76mp terasa = 84.27mp

Apartament 3 camere - Imobil P+4 - Calea Ialomiței nr. 47

Disponibil la parter și etajele
Parter
1
2
3
S. utilă: 79.51mp + 4.76mp terasa = 84.27mp
Hol acces
6.59mp
Baie
4.77mp
Baie
4.75mp
Bucătărie
8.93mp
Dormitor
15.99mp
Dormitor
13.69mp
Cameră de zi
19.77mp
Cameră depozitare
1.98mp
Dressing
3.06mp
Terasă
4.76mp
S. utilă: 79.51mp + 4.76mp terasa = 84.27mp

În curând începem lucrările pentru construcția unui imobil Nou P+4, situat în Târgoviște pe Calea Ialomiței lângă Lidl, spre Complexul de Natație (vis-a-vis de CityPlace). Suprafețe generoase, apartamente de 2 și 3 camere, locuri de parcare, ascensor, monitorizare video, acces cu barieră! Pentru informații sau rezervări sunați la numărul +40737556557.

Detalii Apartamente

 
  • Suprafețe generoase (apartamente de 2 și 3 camere);
  • Locuri de parcare;
  • Ascensor;
  • Monitorizare video;
  • Acces cu barieră;
  • Structură din fier beton;
  • Pereții exteriori și interiori din cărămidă Durotherm;
  • Tâmplărie PVC QFORT;
  • Ușă metalică Mega Door;
  • Uși interioare Pinum;
  • Gresie / Faianță, Parchet.

Avantajul achiziționării în avans constă în personalizarea finisajelor!

Doriți mai multe informații?
 

Vă rugăm completați formularul de mai jos, iar în cel mai scurt timp veți fi contactat de un reprezentant MOL Invest.

De asemenea, ne puteți contacta la

Adresa imobil
 

44.920354550023, 25.482205323939

Imobil P+4
str. Calea Ialomiței nr. 47, spre Complexul Turistic de Natație, lângă Lidl

Deschide în:

Google Maps | Waze