Apartament 2 camere - Imobil P+4 - Calea Ialomiței nr. 47 - S.utilă 53.71mp - Et Parter, 1, 2, 3, 4 -

Apartament 2 camere - Imobil P+4 - Calea Ialomiței nr. 47

Disponibil la parter și etajele
Parter
1
2
3
4
S. utilă: 53.71mp + 6.54mp balcon = 60.25mp

Apartament 2 camere - Imobil P+4 - Calea Ialomiței nr. 47

Disponibil la parter și etajele
Parter
1
2
3
4
S. utilă: 53.71mp + 6.54mp balcon = 60.25mp
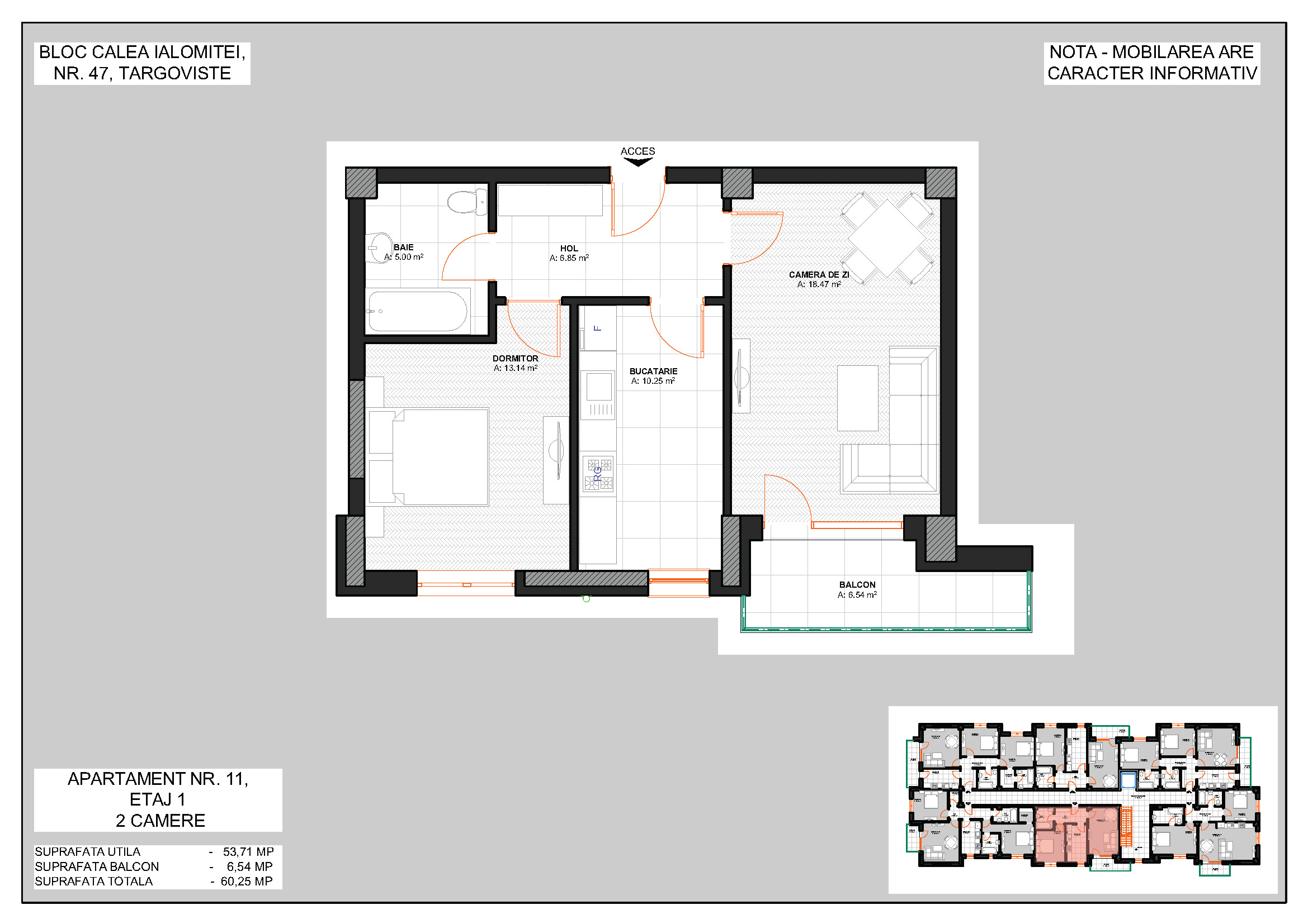
Hol acces
6.85mp
Baie
5.00mp
Bucătărie
10.25mp
Dormitor
13.14mp
Cameră de zi
18.47mp
Balcon
6.54mp
S. utilă: 53.71mp + 6.54mp balcon = 60.25mp

În curând începem lucrările pentru construcția unui imobil Nou P+4, situat în Târgoviște pe Calea Ialomiței lângă Lidl, spre Complexul de Natație (vis-a-vis de CityPlace). Suprafețe generoase, apartamente de 2 și 3 camere, locuri de parcare, ascensor, monitorizare video, acces cu barieră! Pentru informații sau rezervări sunați la numărul +40737556557.

Detalii Apartamente

 
  • Suprafețe generoase (apartamente de 2 și 3 camere);
  • Locuri de parcare;
  • Ascensor;
  • Monitorizare video;
  • Acces cu barieră;
  • Structură din fier beton;
  • Pereții exteriori și interiori din cărămidă Durotherm;
  • Tâmplărie PVC QFORT;
  • Ușă metalică Mega Door;
  • Uși interioare Pinum;
  • Gresie / Faianță, Parchet.

Avantajul achiziționării în avans constă în personalizarea finisajelor!

Doriți mai multe informații?
 

Vă rugăm completați formularul de mai jos, iar în cel mai scurt timp veți fi contactat de un reprezentant MOL Invest.

De asemenea, ne puteți contacta la

Adresa imobil
 

44.920354550023, 25.482205323939

Imobil P+4
str. Calea Ialomiței nr. 47, spre Complexul Turistic de Natație, lângă Lidl

Deschide în:

Google Maps | Waze