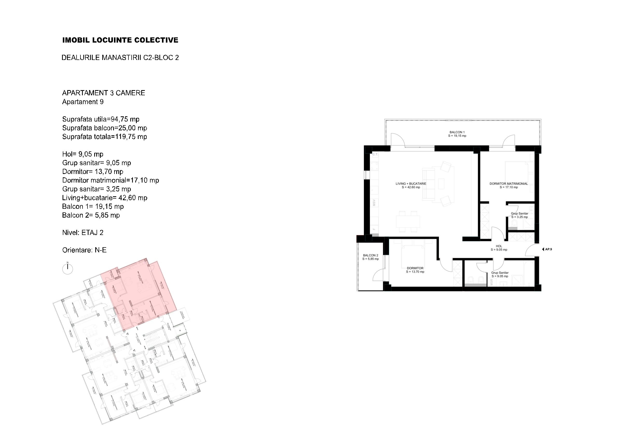
Apartament 3 camere - SkyView - S.utilă 94.75mp - Et 2 -

Apartament 3 camere - SkyView

Disponibil la etajul
2
S. utilă: 94.75mp + 25mp balcoane = 119.75mp

Apartament 3 camere - SkyView

Disponibil la etajul
2
S. utilă: 94.75mp + 25mp balcoane = 119.75mp
Hol acces
9.05mp
Baie
3.25mp
Baie
9.05mp
Dormitor
13.70mp
Dormitor
17.10mp
Camera de zi + Bucătărie
42.60mp
Balcon
19.15mp
Balcon
5.85mp
S. utilă: 94.75mp + 25mp balcoane = 119.75mp

Un nou proiect MOL INVEST într-o locație unică, pe platoul Mănăstirii Dealu cu vedere panoramică spre oraș și spre Gura Văii.

Apartamente spațioase tip penthouse cu 3 camere și terase.

Detalii Apartamente

 

Apartamente spațioase tip penthouse cu 3 camere și terase.

Avantajul achiziționării în avans constă în personalizarea finisajelor!

Doriți mai multe informații?
 

Vă rugăm completați formularul de mai jos, iar în cel mai scurt timp veți fi contactat de un reprezentant MOL Invest.

De asemenea, ne puteți contacta la

Adresa imobil
 

44.954558, 25.485131

SkyView
Apartamente tip penthouse

Deschide în:

Google Maps | Waze