Apartament 2 camere - Imobil P+5 B-Dul Eroilor / Str. Cernăuți - S.utilă 52.26mp - Et 1, 2, 3, 4 -

Apartament 2 camere - Imobil P+4E+5R B-Dul Eroilor / Str. Cernăuți

Disponibil la etajele
1
2
3
4
S. utilă: 52.26mp + 7.36mp balcon = 59.62mp

Apartament 2 camere - Imobil P+4E+5R B-Dul Eroilor / Str. Cernăuți

Disponibil la etajele
1
2
3
4
S. utilă: 52.26mp + 7.36mp balcon = 59.62mp
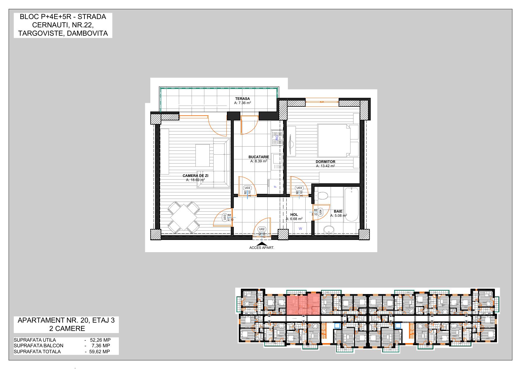
Hol acces
6.68mp
Baie
5.08mp
Bucătărie
8.39mp
Dormitor
13.42mp
Cameră de zi
18.69mp
Balcon
7.36mp
S. utilă: 52.26mp + 7.36mp balcon = 59.62mp

Lucrările au început!
Un nou proiect rezidențial prinde contur pe B-dul Eroilor / Str. Cernăuți (Micro 2) – un ansamblu modern cu apartamente de 2 camere, 3 camere și tip Penthouse, completat de locuri de parcare și spații verzi generoase. Pentru rezervări și mai multe informații sunați la numărul de telefon 0737-556-557 sau 0737-557-556.

Detalii Apartamente

 

📅 Termen de finalizare: Octombrie 2026
✅ Proiect modern, într-o zonă excelentă a Târgoviștei
✅ Apartamente spațioase și bine compartimentate
✅ O investiție sigură pentru viitorul tău

📞 Pentru rezervări și mai multe informații sunați la:
👉 0737-556-557 sau 0737-557-556

Avantajul achiziționării în avans constă în personalizarea finisajelor

Doriți mai multe informații?
 

Vă rugăm completați formularul de mai jos, iar în cel mai scurt timp veți fi contactat de un reprezentant MOL Invest.

De asemenea, ne puteți contacta la

Adresa imobil
 

44.937369899975, 25.442528793754

B-Dul Eroilor / Str. Cernăuți (micro 2)

Deschide în:

Google Maps | Waze